Продам квартиру у моря (Светлогорск, Калининградская обл, Россия)

17 605 000 тг.
 
Продам квартиру у моря (Светлогорск, Калининградская обл, Россия)
  • Площадь, м2:
    76,00
  • Количество комнат:
    2
  • Тип дома:
    Кирпичный
  • Этажей в доме:
    4
  • Тип объекта:
    Новостройка
  • Наличие балкона:
    балкон
  • Санузел:
    раздельный

 

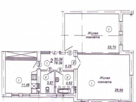
Продам квартиру в новостройке, в центре города-курорта Светлогорска, на берегу Балтийского моря. Калининградская область, Россия.
2-к квартира 76 м² на 2 этаже 4-этажного кирпичного дома
Состояние серый ключ, жилая площадь 50 м кв, кухня 10 м кв, с/у совмещён, возможна перепланировка, т.к. нет несущих стен. А/о, установлен 2-контурный газовый котёл. Открытый балкон. Дом на 12 квартир,сдан в 2012 году, заселён.
Удобное местоположение, центральная часть Светлогорска-2. В пешей доступности центральная площадь, променад у моря и новый Театр эстрады Янтарь холл (1 км).

Караганда

Авторизация

Похожие объявления

  • 20 500 000 тг.
    Монолит; Этаж: 3; Новостройка; Количество комнат: 2; Комплекс: ЖК Шапагат; Республики 1/4
  • 22 900 000 тг.
    Площадь, м243,00; Кирпичный; Этаж: 3; Вторичка; Количество комнат: 2; Назарбаева 19а
  • 15 000 000 тг.
    Площадь, м244,00; Панельный; Этаж: 2; Вторичка; Количество комнат: 2; 16 мик-он 25/2
  • 7 500 000 тг.
    Площадь, м232,00; Кирпичный; Этаж: 4; Вторичка; Количество комнат: 1; 14 Микрорайон ,22 дом
  • 18 000 000 тг.
    Площадь, м261,20; Кирпичный; Этаж: 3; Вторичка; Количество комнат: 4; 8 21мкр